Обяви За нас Контакти
Продава 3-СТАЕН
град Пловдив, Тракия
При запитване
История на цената
Коригирана в 15:48 на 8 декември, 2025 год.
Обявата е посетена 222 пъти.
Площ:
121 m2
Етаж:
8-ми от 18
Строителство:
Тухла, 2024 г.

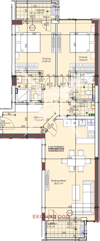
Описание на имота:


Компания X представя на Вашето внимание тристаен апартамент в кв. Тракия.

МЕСТОПОЛОЖЕНИЕ: Квартал Тракия е един от по-големите квартали в град Пловдив, който се намира в северната част на града. В Тракия има множество училища, детски градини, магазини, заведения за хранене и други удобства, които правят квартала желано място за живеене.

СТРОИТЕЛСТВО: Апартаментът се намира на 8-ми етаж, тухла.

РАЗПРЕДЕЛЕНИЕ: Жилището разполага с площ от 121кв.м всекидневна, две спални, баня с тоалета, склад, тераса.

СЪСТОЯНИЕ: В строеж.

Заповядайте да Ви го покажем. Използвайки нашите услуги Вие ще превърнете закупуването на новия си дом в едно приятно изживяване, ще получите персонален консултант, съдействие при кандидатстване за кредит от всички банки в България, интериорни дизайнери и екип, който да се погрижи за нужните документи по Вашата сделка. На Ваше разположение сме всеки ден, от понеделник до неделя от 09:00 до 20:00ч. Възползвайте се от безплатна консултация в наш офис, където ще ви спестим време и ще ви запознаем с всички актуални имоти в България, отговарящи на Вашето търсене. Свържете се с нас нужен Вие само кодът на имотът:274-18201
Особености
Тухла
За контакт:
0887779990
Агенция:
ЕКС НВД ООД
088777990
ЕКС НВД ООД logo
В imot.bg от 2023 г.
xnvd_plovdiv.imot.bg
Адрес:
област Пловдив, гр. Пловдив, бул. Мария Луиза 43 А
ИЗПРАТИ ЗАПИТВАНЕ
ИЗПРАТИ ЗАПИТВАНЕТО

Продава 3-СТАЕН
град Пловдив, Тракия
Обява: 1c173331045643419

При запитване
История на цената

ЗАПАЗИ ОБЯВАТА

Местоположение: град Пловдив, Тракия

Допълнителни данни за имотите в района и сравнение с други райони

Покажи

Период

и 2 месеца

* Средните цени са определени чрез медианна стойност